Novostavba rodinného domu – Velký Bor

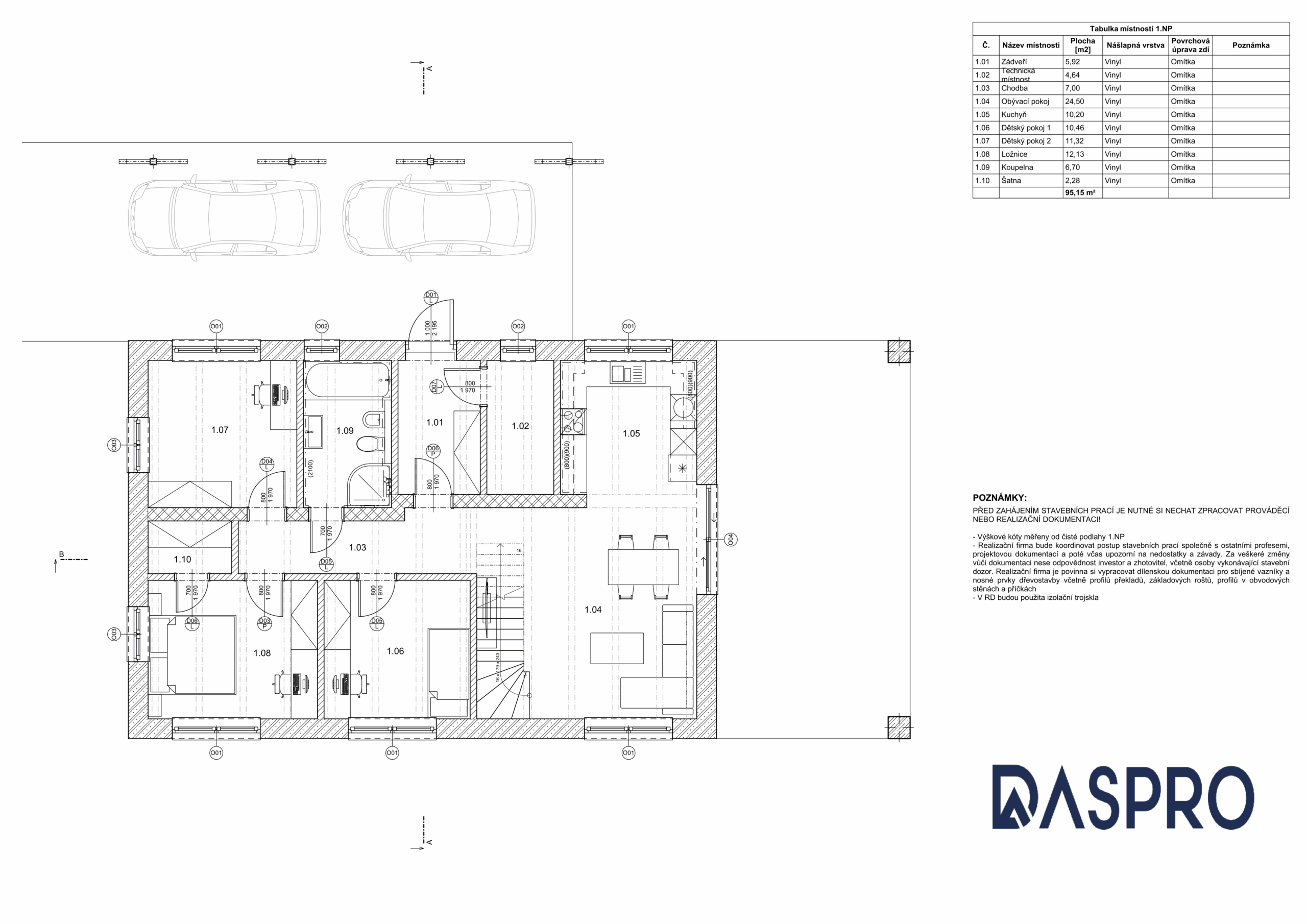
V obci Velký Bor jsme projektovali dvoupodlažní rodinný dům s promyšlenou a jednoduchou dispozicí. Zajímavým architektonickým prvkem je prodloužená střešní konstrukce, která od počátku tvoří krytou terasu, aniž by bylo potřeba dodatečných zásahů. Tento praktický prvek vytváří pohodlnou venkovní zónu pro relaxaci a zároveň harmonicky doplňuje celkový vzhled domu. Precizní řešení každého detailu zajišťuje komfortní a funkční bydlení pro jeho obyvatele.


Zpět na reference
Přejít nahoru
Daspro s.r.o
Přehled ochrany osobních údajů

Tyto webové stránky používají soubory cookies, abychom vám mohli poskytnout co nejlepší uživatelský zážitek. Informace o souborech cookie se ukládají ve vašem prohlížeči a plní funkce, jako je rozpoznání, když se na naše webové stránky vrátíte, a pomáhají našemu týmu pochopit, které části webových stránek považujete za nejzajímavější a nejužitečnější.
Více